Если цена в объявлении изменится, мы сразу сообщим вам об этом на электронную почту.
Нажимая «Подписаться», вы соглашаетесь с правилами.
продам дом, Энергия СНТ, 7329 950 000 ₽
29 ноя
Дата публикации объявления
Обн. 2 апр
Дата обновления объявления
1
Количество просмотров (+ просмотры за сегодня)
325 543 ₽/м²
Чистая продажа
Термин "Чистая продажа" означает, что в квартире никто не прописан или
есть куда выписаться и вывезти вещи. Это лучший вариант для покупателя.
Вероятность срыва сделки минимальна.
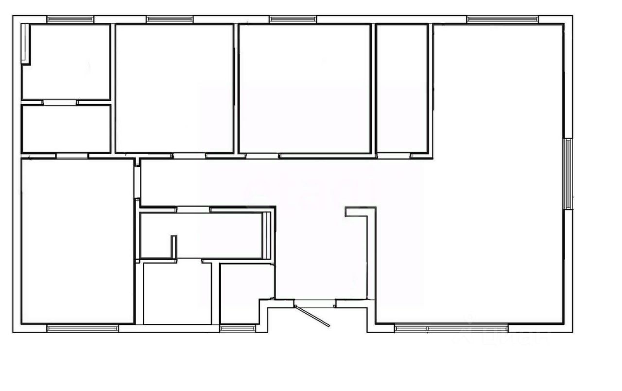
Этажей1
Площадь участка5,7 соток
Общая площадь92 м2
ЭлектричествоЕсть
Газоснабжениенет
Эксклюзивное предложение! Внимание, подходит под программы льготного кредитования ''Дальневосточная'' и ''Семейная'' ипотеки. Дом комфорт класса от застройщика с отделкой и мебелью по дизайнпроекту на земельным участке в уникальном тихом месте, рядом с Сити Моллом (СНТ Энергия 73). Дом возведен по проекту Микея 3 по современным технологиям, с учетом требований по сейсмостойкости нашего региона, с применением качественных материалом. Гарантия на дом 5 лет. Внутренняя (полезная) площадь дома 92 кв.м. Конструктив дома: • Железобетонный каркас с заполнением автоклавным газоблоком • Кровельная стропильная система: ЛСТК (каркас последнего поколения: лёгкие стальные тонкостенные конструкции).
Эксклюзивное предложение! Внимание, подходит под программы льготного кредитования ''Дальневосточная'' и ''Семейная'' ипотеки. Дом комфорт класса от застройщика с отделкой и мебелью по дизайнпроекту на земельным участке в уникальном тихом месте, рядом с Сити Моллом (СНТ Энергия 73). Дом возведен по проекту Микея 3 по современным технологиям, с учетом требований по сейсмостойкости нашего региона, с применением качественных материалом. Гарантия на дом 5 лет. Внутренняя (полезная) площадь дома 92 кв.м. Конструктив дома: • Железобетонный каркас с заполнением автоклавным газоблоком • Кровельная стропильная система: ЛСТК (каркас последнего поколения: лёгкие стальные тонкостенные конструкции). Комфорт и технологии: • Умный дом от компании ''Смарт-Инсайт'', • Панорамные окна (5-камерный профиль, коленное энергоэффективное стекло), • Большеформатный панорамный раздвижной портал, в кухне-гостиной, • Второй свет в кухне-гостиной (высота 5 м), • Мансардные окна с электроприводом, • Сауна в зоне санузла. Коммуникации: • Электричество — 30 кВт, • Скважина с системой водоподготовки, биосептик, • Тех помещение: коллектор теплого пола, разводка горячей и холодной воды, бойлер косвенного нагрева, рециркуляция горячей воды, гидроаккумуляторы, холодной и горячей воды, электрический котел, электрический щит, • Отопление: тёплый пол, • Газификация СНТ запланирована на 20262027 гг., • Интернет — ''Солнце Телеком''. Земельный участок 5,7 соток, ВРИ: для ведения садоводства. Благоустройство территории: • Заб