1-к, Есенина, 4 Показать на карте
Южно-Сахалинск
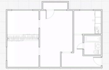
Продается уютная, чистая одно комнатная квартира индивидуальной планировки площадью 44 кв.м в спокойном районе города Южно сахалинска . В квартире сделан качественный ремонт: выровнены стены, заменены межкомнатные двери, радиаторы отопления, окна (ПВХ), полы ламинат. Большая кухня- гостиная 20 кв.м , спальная комната 12кв.м, окна ориентированы на юг. Санузел совмещен, электротитан, кафель, горячая вода круглый год, установлены приборы учета горячего и холодного водоснабжения. Новая входная железная дверь, домофон. В прихожей оборудован шкаф-купе. Большая придомовая территория, с детской площадкой, всегда есть место для парковки. Дом располагается в спокойном районе рядом с супермаркетом ''Фреш''. Вся необходимая инфраструктура в шаговой доступности: средняя школа 26, средняя школа 6, детский сад ''Русалочка'', магазины ''Первый Семейный'', ''Мельница'', ''Любимый'', микрорынок ''Южный'', Новая аптека, кафе, остановки общественного транспорта. Все дополнительные вопросы по телефону.
44 м2
9 / 9 этаж
Монолит
- Показать контакты
- Добавить в избранное
44 м2
9 / 9 этаж
Монолит
8 900 000
202 273 /м2
