Офисное помещение
Коммунистический проспект, 31б Показать на карте
Коммунистический проспект, 31б Показать на карте
Южно-Сахалинск
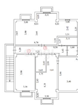
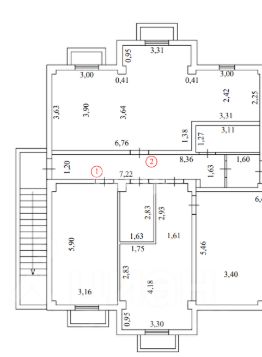
Сдается в долгосрочную аренду офисное помещение в самом престижном комплексе города Грин Палас Люкс, расположенного в деловом центре города Южно-Сахалинска. Помещение расположено во внутренней части четвертого этажа первого здания комплекса. Окна ориентированы на западную сторону, утром в кабинетах много солнечного света. Общая площадь офиса 84,4квадратных метра, включающие в себя: одно просторное общее помещения и отдельный кабинет. Дамская и мужская туалетные комнаты общие на этаже, расположены в непосредственной близости. Здание оборудовано современным лифтом и лестницей. В холле первого этажа имеется кофе-бар, бутики. Так же в составе комплекса размещаются два ресторана. Доступен паркинг на открытом дворе. На все интересующие вопросы ответим по указанным номерам телефонов. Код пользователя: 32366Номер в базе: 6892874
84 м2
- Показать контакты
- Добавить в избранное
84 м2
170 000 /мес.
2 014 /м2
