Универсальное помещение
Мира проспект, 426 Показать на карте
Мира проспект, 426 Показать на карте
Южно-Сахалинск
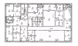
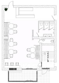
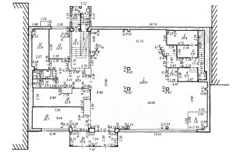
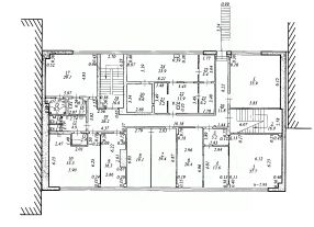
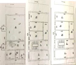
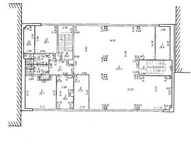
АУКЦИОН. Объект реализуется на торгах в электронной форме.Предлагается к покупке комплекс нежилых помещений общей площадью 1 633, 8 кв. м с движимым имуществом по адресу: Сахалинская область, г. Южно-Сахалинск, пр. Мира, д. 426. Все объекты находятся в собственности и свободны от обременений.9 помещений площадью от 14, 5 до 1 046, 9 кв. мКадастровые номера: 65:01:0602005:1942, 65:01:0602005:1943, 65:01:0602005:1944, 65:01:0602005:1945, 65:01:0602005:1946, 65:01:0602005:1947, 65:01:0602005:1948, 65:01:0602005:1949, 65:01:0602005:1950Здание: 4-этажное офисное здание (3 этажа+подвал+мансарда)Год постройки: 1991 г.Коммуникации: Электроснабжение, отопление, водоснабжение, канализацияОсобые условия: Собственнику остается площадь 66, 2 кв. м (водонапорный узел и скважина)Движимое имущество: Охранная видеосистема (с отключением экстренного вызова) и система телевизионного наблюдения (распашные ворота южные)Объект расположен в удобном месте на второй линии проспекта Мира, главной артерии города, которая связывает ключевые трассы А-391 и А-393 (направления Корсаков Южно-Сахалинск и Ноглики). Факторы инвестиционной привлекательности:Расположение: Находится в общественно-деловой зоне на территории производственной базы, что может обеспечить как деловую активность, так и потенциал для развития сопутствующей инфраструктуры.Благоустроенная территория: Наличие деревьев, благоустройства и твердого покрытия вокруг здания создает приятную и функциональную среду.Развитая инфраструктура для бизнеса: Наличие площади под парковку и места для организации хранения является значительным преимуществом для потенциальных арендаторов, особенно в производственной или логистической сфере.Низкие эксплуатационные расходы: Низкий уровень постоянных операционных и коммунальных расходов делает объект экономически выгодным для владения и сдачи в аренду.Удобный доступ: Удобство въезда-выезда на территорию объекта и хорошая транспортная доступность (как на личном, так и на общественном транспорте) повышают его привлекательность для сотрудников и клиентов.Ознакомиться с документацией можно на электронной торговой площадке Росэлторг.Ссылка на торги: https://www. roseltorg. ru/procedure/COM15052600127/1 Подать заявку на участие в торгах можно до 14. 06. 2026, 23:59 (МСК).Начальная цена объекта: 55 600 036 руб.
1634 м2
- Показать контакты
- Добавить в избранное
1634 м2
55 600 036
34 025 /м2
